Фирменный поезд «Кузбасс»

«Кузбасс» — поезд формирования АО «ФПК», получивший статус фирменного в 1998 году. Состав соединяет столицы России и Кемеровской области, позволяя путешественникам с комфортом добраться до конечной станции и насладиться красотами Сибири. Как и другие современные поезда, «Кузбасс» — фирменный состав, сформированный из новых вагонов серо-красного цвета с логотипом РЖД.
Маршрут
- из Кемерово под номером 029Н — по четным;
- из Новосибирска под номером 030Н — по нечетным.
Расписание движения
- с Ярославского вокзала Москвы до Новосибирска поездом № 070Ч — 2 суток 2 часа 17 минут;
- из Новосибирска в Кемерово поездом № 030Н — 5 часов 11 минут.
| № поезда | Направление | Отправление | Прибытие |
| 029Н | Кемерово — Москва | 13:48 | 15:58 (+2 дня) |
| 030Н | Новосибирск — Кемерово | 03:09 | 08:20 |
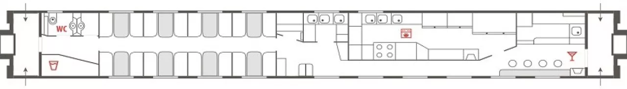
Схема подвижного состава
Состав фирменного поезда «Кузбасс» включает:
- 4 купейных вагона;
- 4 плацкартных вагона;
- 1 штабной (с местами для инвалида и сопровождающего);
- 1 вагон-ресторан.
Все вагоны оборудованы биотуалетами, кондиционерами, розетками и электронными табло. 



Класс обслуживания
В вагонах фирменного поезда «Кузбасс» сделано все для комфортного путешествия: новое постельное белье, горячее питание, необходимый в дороге санитарно-гигиенический набор, свежая пресса. Для удобства пассажиров в вагонах установлены электронные табло, показывающие скорость движения состава, температуру воздуха и время.
| Тип вагона | Характеристика | Сервис и услуги |
| Купе | 2 нижние и 2 верхние полки с откидным столиком индивидуальный светильник | питание постельное белье дорожный гигиенический набор печатные издания |
| Плацкарт | аналогичен плацкартным вагонам в других поездах | постельное белье (за отдельную плату) |
| Вагон-ресторан | современный дизайн фирменное меню: уха «Сибирская» из стерляди, стерлядь в сметанном соусе с луком и др. в меню есть бизнес-ланчи, сезонные предложения, детские блюда | широкий выбор горячих блюд, закусок, салатов, десертов горячие и прохладительные напитки заказ блюд с доставкой в купе |
Стоимость билетов
- плацкарт — от 7100 рублей;
- купе — от 10 300 рублей.